VILA LOZOVAC

Lozovac

429 000,- €

Popis:

Dom na predaj v Lozovaci, novostavba 2021.

Stavba je poschodový, rodinný dom, s jednou bytovou jednotkou.

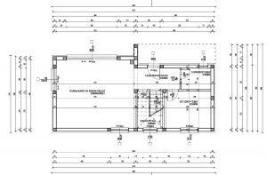
Hlavný vstup do domu je zo severovýchodnej strany, kde je príjazdová cesta a peší prístup.

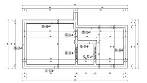
Na prízemí je vstupná chodba, kúpeľňa, spálňa, špajza pod schodiskom a obývačka pozostávajúca z kuchyne, jedálne a obývačky.

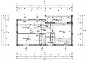
Vnútorné schodisko vedie na poschodie domu, kde sa nachádza chodba, šatňa, práčovňa, tri izby, dve kúpeľne a loggia.
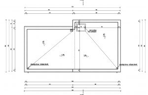
Pred domom je bazén (8×4) s vydláždenou terasou na opaľovanie, zastrešená plocha s pergolou a letná kuchyňa.

Dom sa predáva na kľúč, so všetkým nábytkom.

Kuchynská linka na mieru, SMART bytové stolárstvo a vybavenie vonkajších dverí, podlahové kúrenie v kúpeľniach a obývačke, 5 klimatizačných jednotiek.

Galéria

Vizualizácia

Pôdorys