GREBAŠTICA Projekt

Grebaštica

5500,- € / m2

Popis:

Projekt sa nachádza v strednej Dalmácii v malom mestečku Grebaštica,  10 min od Šibeniku. V okolí sa nachádzajú známe mestá ako Primošten, Rogoznica a do historického Trogir je to len 40 minút autom po pobreží.

Vzdialenosť 20m od mora, každý apartmán má bazén, penthouse má vírivku + bazén, parkovanie pre dve autá na apartmán

Pre bližšie info nás kontaktujte do mailu
development@casazabka.com

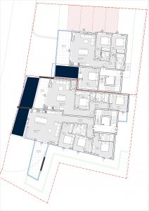
Severná budova:
Výška budovy je suterén, prízemie a 2. poschodie (E=Po+P+2).
Objekt pozostáva z 3 rovnakých bytových jednotiek, po jednej na každom poschodí budovy.
Bytové jednotky pozostávajú z: obývacej izby, troch spální, troch kúpeľní, chodby a bazéna s terasou.

Južná budova:
Výška budovy je suterén, prízemie a 2. poschodie (E=Po+P+2).
Objekt pozostáva zo 6 bytových jednotiek, 2 na každom poschodí budovy.
Severné bytové jednotky tvoria: obývacia izba, dve spálne, kúpeľňa, WC, chodba, balkón a bazén s terasou.
Južné bytové jednotky pozostávajú z: obývacej izby, troch spální, dvoch kúpeľní, chodby, balkóna a bazéna s terasou.

Video

Galéria

Vizualizácia

Projektová dokumentácia

Bosko-idejni-juzna

Bosko-idejni-sjeverna

bosko-1809

Grebastica-glavni

ZK-1588-GREBASTICA